Schlafzimmer 13-16 Grad, Einzug mit Neugeborenem

  • Liebe Community

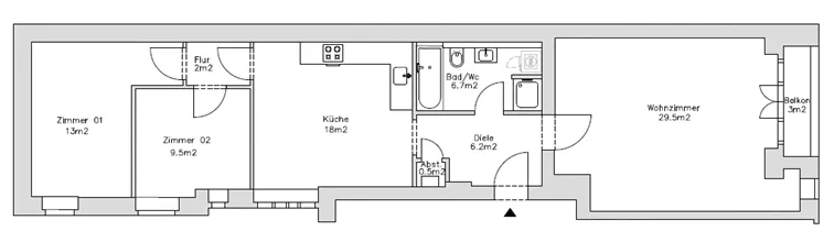
    Zusammen mit meiner Frau und unserem Neugeborenen haben wir im September eine Eigentumswohnung (Altbau) bezogen. Im Winter fiel auf, dass unser Schlafzimmer (Zimmer 1 im Grundriss) lediglich Temperaturen von 14-15 Grad erreichte, trotz maximal aufgedrehtem Heizungsthermostat. Daher schläft meine Frau mit dem Neugeborenen notgedrungen auf dem Sofa im Schlafzimmer. Richtig schlimm.

    Unser Set up: Gastherme Junkers Cerapur ZWB30 + Thermostat Bosch CR100. Heizkörper Typ 22.

    Das Thermostat Bosch CR100 befindet sich im Wohnzimmer (siehe Grundriss). Die Wohnung ist schlauchförmig geschnitten und schlecht gedämmt. Das Schlafzimmer hat 3 Außenwände.

    Bisher waren drei Heizungsinstallateure der gleichen Firma bei uns:

    Durchgeführt wurde laut diesen: Hydraulischer Abgleich, Ventilaustausch des Ventils der Heizung im Schlafzimmer, Erhöhung der Pumpleistung von 2/4 auf 4/4 an der Therme. Da dies zu keiner Verbesserung führte, wurde uns mitgeteilt, dass der Heizkörper zu klein sei und wir einen größeren benötigen würden. Wir blieben skeptisch.

    Mit der Hilfe der Bosch/Junkers Service-Hotline stellten wir die Vorlauftemperatur an der Therme von 50 auf 68 Grad und nahmen probehalber den CR100 außer Betrieb. Das Schlafzimmer wurde endlich angenehm warm, allerdings klopften/ratterten die Heizkörper in der Wohnung immer mal wieder, wenn Änderungen am Thermostat erfolgten. Wenn wir das Ventil leicht zu oder auf drehten, ging das Geräusch weg.

    Wir stellten die Pumpleistung an der Therme wieder herunter, nahmen den CR100 wieder in Betrieb und änderten im Menü des CR100 die Vorlauftemperatur auf 67 Grad (war vorher begrenzt).

    Das Schlafzimmer bleibt mit ca. 16 Grad kalt, die restlichen Räume sind angenehm warm.

    Wir haben schon wirklich viel probiert und sind so langsam am Verzweifeln. Hat jemand Ideen/Ratschläge was wir noch ausprobieren können?


  • Hallo,

    ich würde auf jeden Fall die Auslegung vom Heizkörper im Schlafzimmer prüfen lassen, ob die Leistung für diesen Raum wirklich ausreichend ist. Wenn die Heizkörper immer mal wieder klopften oder ratterten ist dort mit Sicherheit Vor und Rücklauf am Heizkörper vertauscht. Die kann man aber leicht selbst prüfen. Heizkörper abstellen und abkühlen lassen. Wenn man das Ventil am Heizkörper wieder öffnet muss der Heizkörper zu erst oben warm werden am Ventil. Wenn der Rücklauf, unten am Heizkörper zu erst warm wird, ist Vor und Rücklauf vertauscht. Dann wird das Thermostatventil falschherum angeströmt und es kann zu diesen Geräuschen kommen.

    Grüße Sven

  • Hallo Sven,

    Vielen Dank für deine Nachricht. Die Heizkörper klopften nur im Zuge unserer zahlreichen Versuche die Heizung im Schlafzimmer wärmer zu bekommen. Insbesondere bei Hochsetzen der Pumpleistung auf maximal. Wir haben diese Einstellung nun wieder zurückgesetzt auf 2/4. Vor- und Rücklauf sind am Heizkörper tatsächlich vertauscht, allerdings nur in den beiden Heizkörpern im Wohnzimmer. Im Schlafzimmer ist es korrekt. Wir versuchen nun mal einen anderen Sanitärbetrieb zu beauftragen auch mit der Frage ob ein größerer Heizkörper Teil der Lösung sein könnte.

  • Hallo,

    die Heizkörper an welchen der Vor und Rücklauf vertauscht sind, werden immer wieder mal Geräusche machen. Hier sollten Ventile mit umgekehrter Flussrichtung oder wenn vorhanden gekreuzte Hahnblöcke montiert werden.

    Einen anderen Fachbetrieb heranzuziehen kann auf jeden Fall nicht schaden. ;)

    Grüße Sven